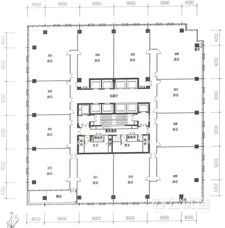
中海国际中心 2236平整层 ¥110 元/㎡/月

高新区 - 金融城 - 交子大道177号 路线提示
位置:[高新区]-[金融城]  
距离[一号线][金融城]地铁站379米步行6分钟
距离[五号线][交子大道]地铁站846米步行13分钟
精装修带家具
双面采光
带老板间
靠窗
CBD核心区域
近地铁
无敌视野
采光好

紧邻交子大道,可看双塔灯光秀

 

中海国际中心 简介

▶四川省优质工程天府杯金奖、国家优质工程奖、2013中国城市地标大奖 写字楼、成都市高新区重点培育楼宇,2015中国西部商业地产最具影响力项目、成都市官方超甲级写字楼,成都市“十亿元”楼宇,甲骨文、江森自控、汇丰银行、中国建筑、富士康、中国交建、国家电投等世界500强及四川金融控股集团、四川省产业振兴基金管理公司等国企总部聚集。
▶甲骨文、江森自控、汇丰银行、中国建筑、富士康、中国交建、国家电投等世界500强及四川金融控股集团、四川省产业振兴基金管理公司等国企总部聚集。

中海国际中心 服务及设施

办公家具
前台接待
会议室
培训室
路演厅
 

预约看房

请留下您的信息,我们将有专业选址顾问与您联系
我已阅读并同意办公优选网隐私政策